
©存在建筑Arch-Exist
坚硬的红色混凝土内,
藏着一抹浪漫温柔的蓝。
—— MUDA慕达建筑创始人 卢昀

©存在建筑Arch-Exist
‖ 项目背景
MUDA慕达建筑此次设计的乡村驿站,坐落在寿安镇岷江村,位于成都的温江区。作为一个典型的乡村振兴新农村,岷江村东临江安河畔,北林绿道贯穿其中,交通便利,景色优美,全村以花草苗木种植为其产业优势。
政府计划在北林绿道上每隔一定距离建设一个乡村驿站,为绿道上骑行和游玩的人们,提供休息和服务,同时也可服务驿站周边的村民。

©Luyun

©存在建筑Arch-Exist
作为乡建项目,驿站的造价预算比较有限。此次设计没有追求夸张的造型、前沿的材料或高端的工艺;而是通过纯粹的几何形态塑造其标识性,传统的建筑材料回应其在地性,标准的施工工艺保证其落地性。希望为当地呈现一个有特色的建筑,同时也是一个当地施工队就可以完成的建筑。

©存在建筑Arch-Exist
‖ 设计概念
考虑到乡建的建造成本和自然的乡野环境,MUDA慕达建筑选择摈弃掉多余的建筑装饰,以清水混凝土作为建筑主体。用现代美学的抽象几何空间,最大程度地将自然景观引入其中,打造一个乡村的多功能公共建筑。

©Luyun

©Luyun
热情和质朴是当地的人文特质,而如何将这种性格赋予整栋建筑?经过一系列的思考和尝试,红色混凝土成为此次项目的关键词。为了确认建筑最终的色彩和肌理表达,设计过程中针对混凝土和氧化铁红的十余种配比进行了实验,最终确认了一种暖色调且明快的红来呈现整个建筑。

©存在建筑Arch-Exist

©存在建筑Arch-Exist
MUDA慕达建筑在空间设计上也特别关注了当地居民的生活方式。成都地处四川盆地,阳光,对成都人来说是非常稀有和宝贵的。不管夏天还是冬天,一出太阳,成都人就喜欢到室外活动:喝茶、聊天、打麻将。
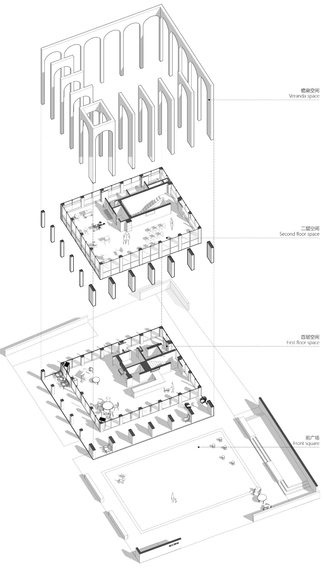
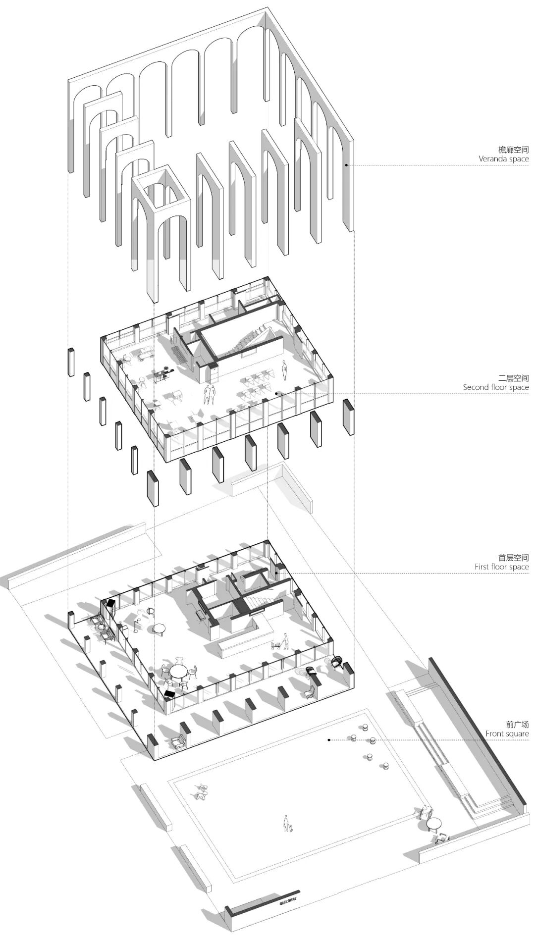
同时,川西传统民居有一种很经典的建筑语言-檐廊空间,也就是现在所说的灰空间。半室外的檐廊空间构建了人们聚集、休息、商品售卖等多功能场景。

©存在建筑Arch-Exist

©存在建筑Arch-Exist
从这种传统民居的建筑形式上得到灵感,在建筑的两个立面设计了两层通高的“檐廊”空间。红色片墙形成空间序列,室内和室外通过灰空间连接过渡,人们游走其中可以感受到既熟悉又特别的空间体验。
将传统的空间语言转译成为新的空间类型,满足当代新村民的使用。红色清水混凝土的片墙序列,赋予建筑生命力,在自然光环境下呈现出不断变化的多层次空间氛围。

©存在建筑Arch-Exist

©存在建筑Arch-Exist
‖ 平面与空间
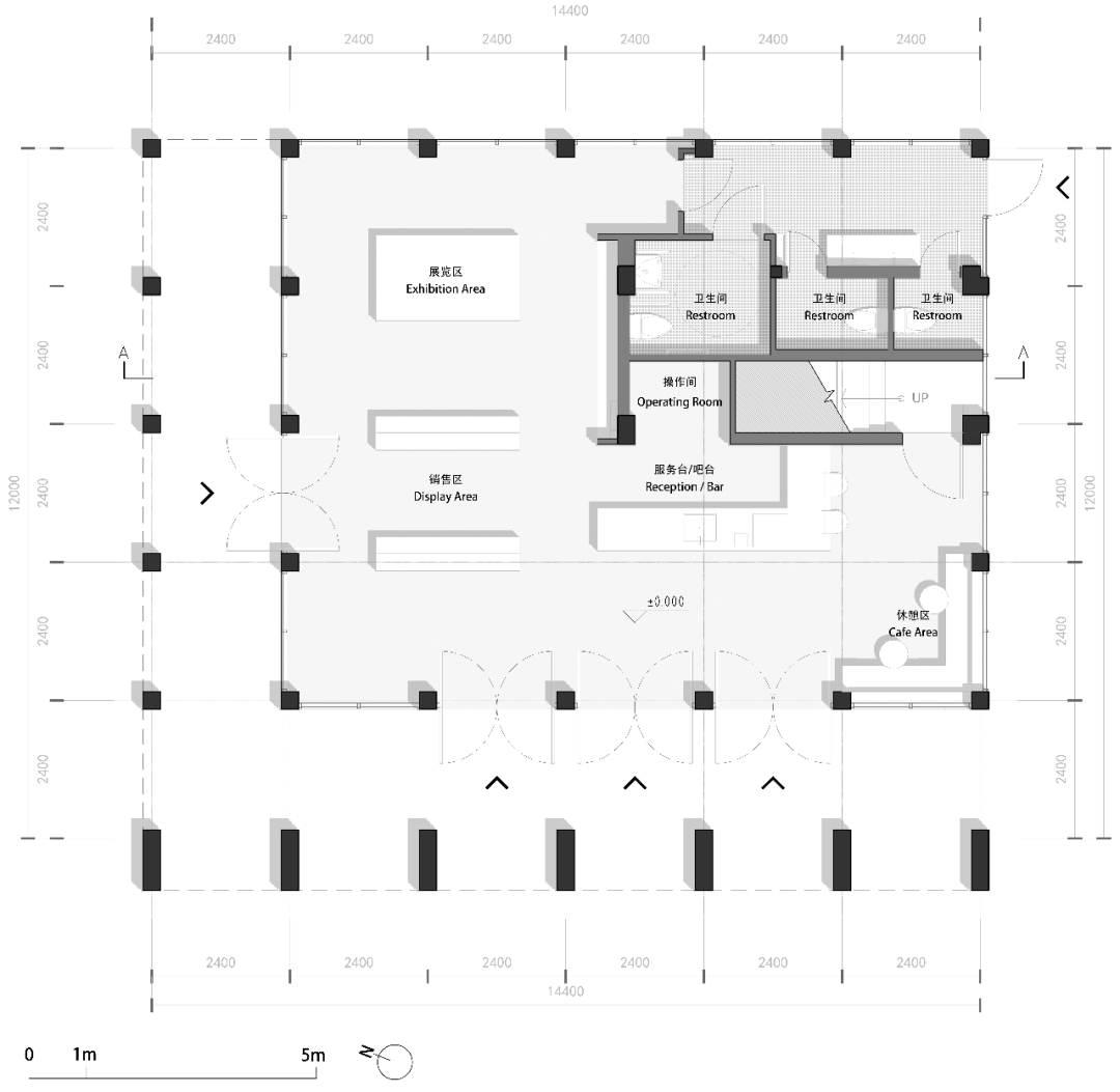
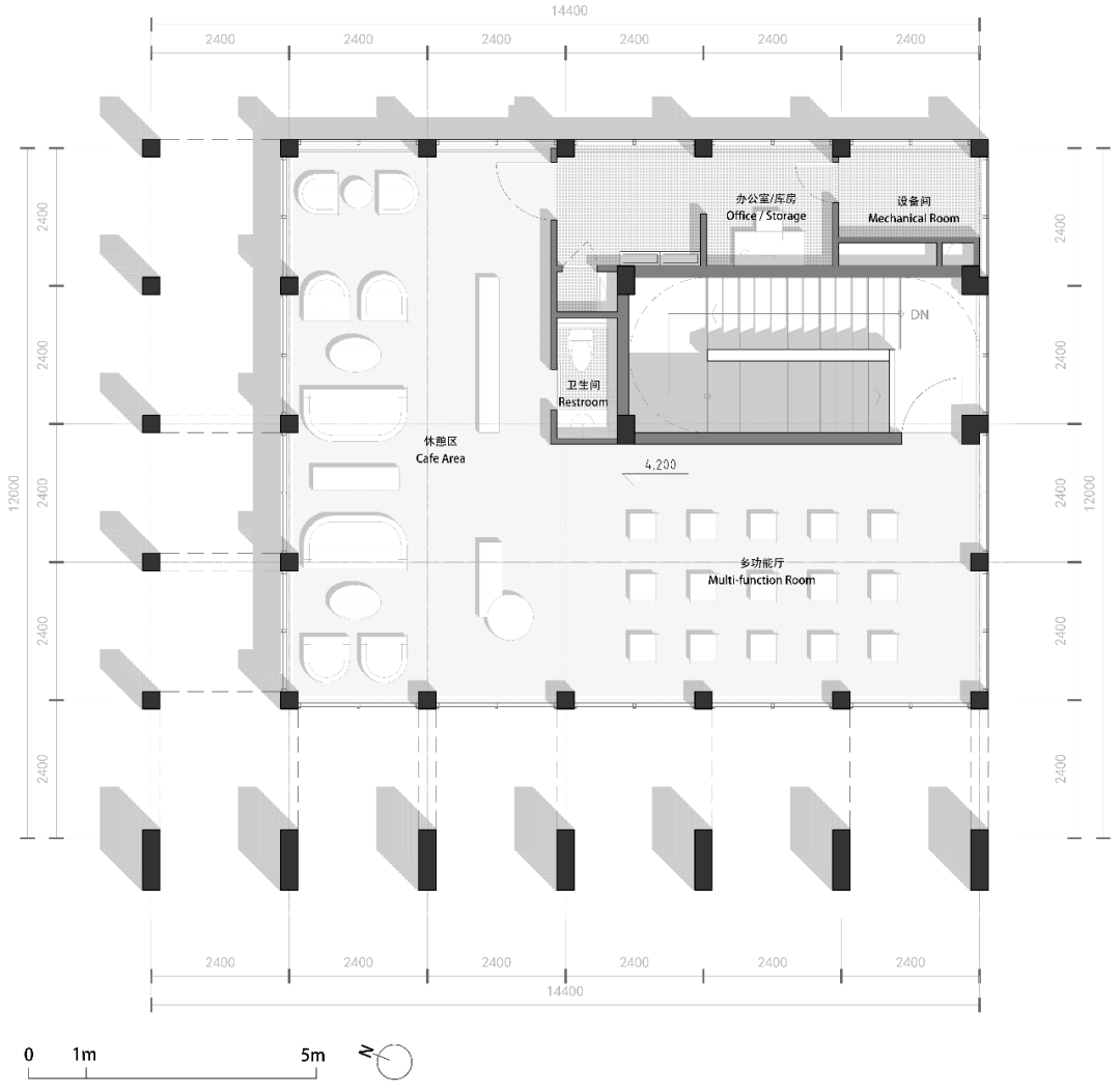
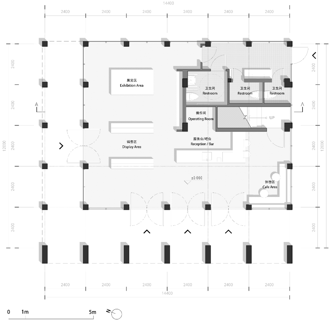
从建筑主入口步入室内,是一个尺度亲和的前置空间和服务吧台。吧台一侧是休憩区域,另一侧则是开敞的展销区域,村上自己酿造的桂花酒、手工艺竹编和微盆景,在这里展示和售卖,成了为属于村民们自己使用的公共空间。整个首层空间有多个出入口,联通室内外,游客可在其中自由穿行。

©存在建筑Arch-Exist

©存在建筑Arch-Exist
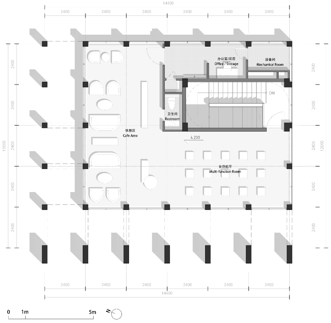
二层空间通过灵活移动的家具实现了其多功能性:平时作为一层空间的延伸,提供轻餐和休憩的功能;也可以在需要时变为适宜集体活动的多功能室和会议室。
从二层的玻璃幕墙看出去,可将建筑周边的开阔绿色尽收眼底,透过拱形取景框形成一幅幅美丽画面,这也是在当地才能体会到的自然氛围。

©存在建筑Arch-Exist

©Luyun
连接一层和二层的楼梯间,它像建筑的内核,也像一个封闭的世界。MUDA慕达建筑希望能让内部跟外部产生完全不同的两种空间感受,这种冲突感会带来更多趣味性和互动性。
色彩给人以不同的心理感知,建筑以一种明快的红色,彰显热情和力量。设计挑选了一种浪漫的海蓝色铺满整个楼梯间,海蓝色代表了大海和天空,希望在建筑内部营造出一种浪漫、深邃的空间氛围。

©存在建筑Arch-Exist
当你打开这扇门,从全红色的空间进入楼梯间,蓝色会让人变得平静;阳光穿过玻璃浸透空间,你会在这里感受到一种自然的神秘。走完这个楼梯,你又回到了一个红色空间,这是这个建筑给人惊喜的一部分。

©Luyun

©Luyun
‖ 结语
这座建筑既有熟悉的在地性空间感受,又有独特的片墙序列语言;这里的空间行为既有悠然的闲谈小憩,也有振兴乡村的产业销售。
暖红色的建筑主体和海蓝色的建筑核心,这种强烈的色彩碰撞,既在回应活泼热情、内心安逸的城市人文性格,也是对兼具当代性和传统底蕴的成都地域文化的一种张力表达。

©存在建筑Arch-Exist

©存在建筑Arch-Exist

一层平面图 ©MUDA慕达建筑

二层平面图 ©MUDA慕达建筑

轴测分析图 ©MUDA慕达建筑

立面图 ©MUDA慕达建筑

立面图 ©MUDA慕达建筑

剖面图 ©MUDA慕达建筑

墙身剖面 ©MUDA慕达建筑
