科学的世界和美的世界是按照数组纵就绪的。
美表现于数量比例上的对称和谐,
和谐起于差异的对立,美的本质在于和谐。
- 理论出自毕达哥拉斯学派
空间图

“在科技高速发展的未来,人们远离地表之上建立起一座‘天空之城’,将地面还给森林、河流,以充分释放自然资源的活力。“漂浮的城市”保护了自然生态, 也为人类的未来提供了更多可能……”
这是一个服务于科技产业的集成空间,以上则是我们在接触到项目需求时,旋即就提出的设计思路梗概。

营造沉浸式“未来感”

我们用大面积的白色将空间包裹起来,再以银、白色系的不同材质去创建功能元素,搭配线或面的灯光设计,产生“多重曝光”效果;利用体块的组合,在线条与镜面的辅助下形成一定程度的空间压缩感,如此视觉“特效”的叠加,未来世界的科幻感也就自然地被强化了。

悬浮于一楼门厅的楼梯,便会在第一时间带给人这样的视觉体验。这个几乎没有支撑点,看似以搭积木的手法随意堆叠起来的楼梯,其实是经过结构工程师严谨的计算后,采用钢架、钢板搭建完成的。


用纯白的岩板做梯步贴面,钢化玻璃做扶手,再将亚克力与灯带组合出的线性光源有序地拼接在梯步间。



于是,这个大家伙看起来似乎并不受重力影响,好像还具备某种传送功能。



流畅的回遊动线

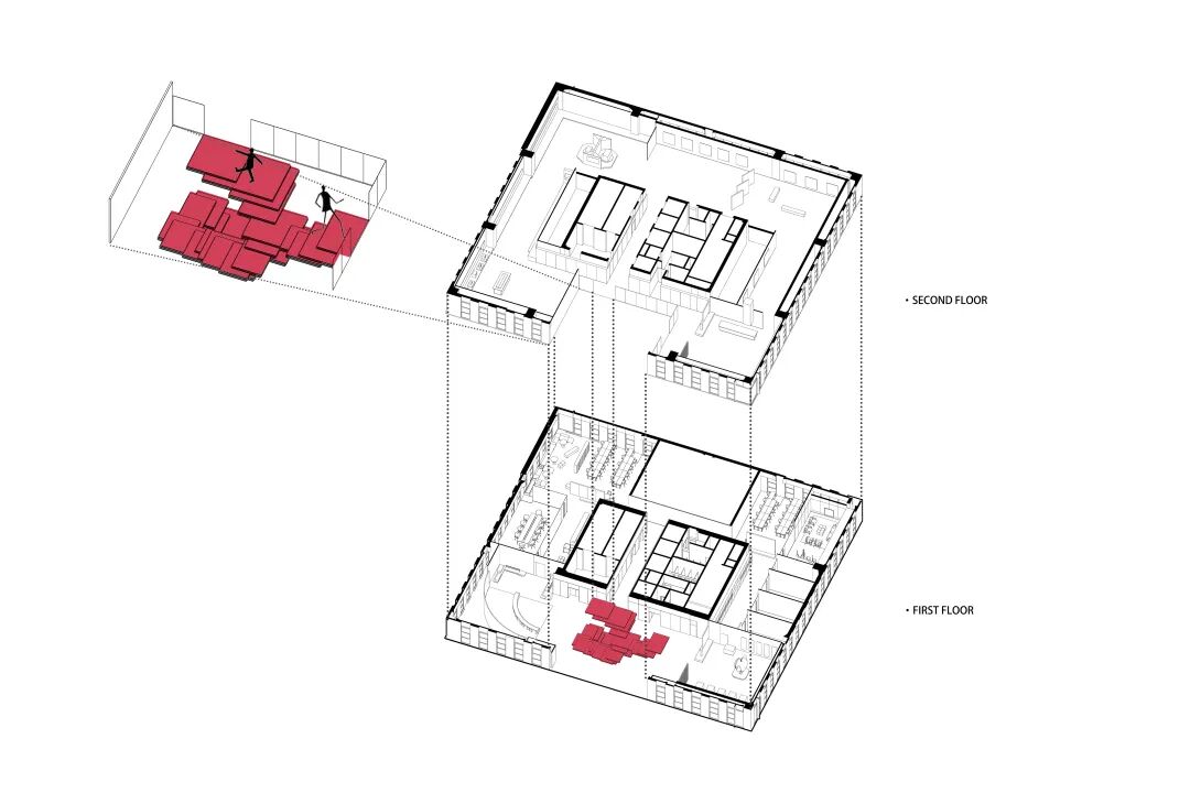
就平面布局而言,这个两层加起来2000余平米的空间,并没有什么特别之处。因为使用需求简单直接,一层基本划分为多个独立的办公区域,而二层则是展陈区。
但这是一个错层挑高的空间,那座连接上下的楼梯往上就可以开启两个端口,从初始到结束形成一条不走回头路的流畅动线。
■ 一层门厅及部分二层展陈空间欣赏,
请切换至横屏模式浏览













■ 注:以上图片中所涉画展:修心游艺,
画作均为陈展方:知著画廊 所有。
图片中所涉及产品均为甲方所有。
随着项目的推进,我们察觉到它更像是一个“矩阵”。

一个将要汇集人类思考衍生品的集成空间。无论发展科技的目的,也许一切思考及探索的行为,都代表着人类试图证明我们真实存在于浩瀚星海。尽管电影《Marix》里所讲述是人类与AI间的较量或者说是反抗,但也让我们明白人类的进化是不可逆的。

于是,我们带着对于未来的期望,创造了这个充满光明的White Matrix,一个或许将成为与未来链接、交互的矩阵空间。

“Je pense, donc je suis“
”我思故我在“
- 笛卡尔.1637
