
“与城市共藏一座湖山”,还原城市原生态自然栖居生活。项目背靠牧马山,锦江环绕,占据数千亩的城市原生自然资源,拥有峡谷、湖海、浅丘、森林等丰富原生地貌。
溪谷实景
设计师希望主人可以在房子里感受到阳光的味道、自然的气息及四季的变幻,居住于此,与自然同在。
时光悠悠。日光如瀑,亭台水榭。流水潺潺,花木相生,绿叶葳蕤,植物、阳光与水被提炼成无形的气质,流溢着璀璨的光彩。
设计善于从无中创造有,模糊边界的栖息地介于外部与内部之间。巧妙利用建筑高差,在一个连续体中切割多样化的空间,塑造各自独立又彼此呼应相生的活动区,为一家人提供充满活力且赏心悦目的户外世界



一场关于人与自然的园林对话,在这个私家庭院曼妙而生。居者仿佛重回熟悉的怀抱,回归纯净梦境,在延展的自然场景中拉开生活的序幕。
二十世纪中期最著名的现代主义建筑大师密斯.凡德罗描述的:“少即多(Less is more)”,至今仍为极简主义的中心思想。给设计做减法,也就是给生活做减法,让生活更简单,心灵更平静。


视线穿透,从日常琐碎中抬头凝望。徜徉于如水的光线中,居者的目光自穹顶回转,于天地间思考自我的位置。空间造型的艺术感,由客厅中央的挑空设计得以放大,纵向的交流互动的体验在无形中得以放大和延展。


在极简设计中,没有太多造作的修饰与约束,摒弃一切无用的装饰,保留必要元素,通过干练的造型,打破了简约的沉闷,又平衡了奢华的浓重,在审美和功能之间保持平衡,真正做到“简而不凡”。





家与自然,人与世界,不再拘泥于严格的分界线,与开放式中西厨空间连接的客餐厅,在天地与绿植的开放式包裹里,将自然主义的生活哲学进行到底。
空间本质 哲学求真,道德求善,建筑求美。极简省去了繁复的材质和色彩,空间聚焦到光线、自然、尺度的表达上,探寻人对空间最真实的需求。





极简主义主张减少创作设计的步骤,在室内留下足够的“灰空间”。运用硬朗、冷峻的直线条,力求从视觉感官上体现简约、纯粹、高雅、时尚的风格。



家的设计迷人之处,是因为它尝试着在共同生活的空间中,尽量还原每一个家庭成员喜欢的样子,在共性中保留个性。


爱和尊重,是最好的养分。儿童房设计延续温柔童话,守护每一份自由生长的童真无邪。
家的意义






极简家居一般以黑白灰三种颜色最为常用,当然不局限于此三种颜色,同时可以使用一到两种低饱和度的颜色,在视觉上会带给人简洁、开阔和通畅的感觉。

人的感官体验是独特的,不尽相同的,甚至于每一个瞬间我们都能获得独特的感知,一个真正的家呈现的是身体、环境和想象的融合,形成人与世界的交互。



室外朦胧的色彩,让滋养心灵的空间能量不断流动,浅浅低吟出一曲悠扬的旋律,在都市快节奏的生活中给予了一份难得的归属感。



多样化的收纳空间一应俱全。款款步入,暗香盈袖,自带知性优雅的气质,魅力由心焕发。



项目信息
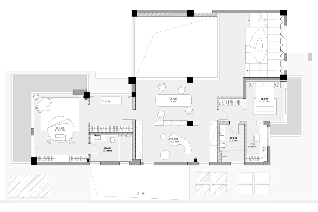
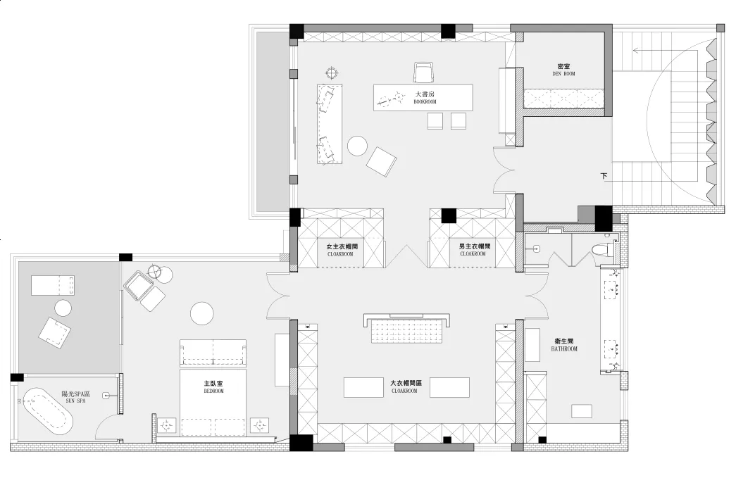
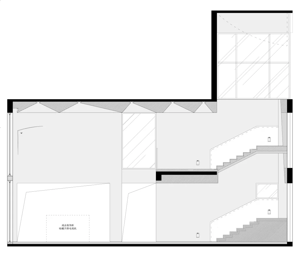
△一层平面图 △二层平面图 △三层平面图 △立面图一 △立面图二 △立面图三 △立面图四 






