
Nemo X 江安别墅|
关键词 X 空间的精神性|
家宅,一个看似简单却实为复杂的概念。
从“庇护”的角度看,家宅解决的是我们与世界的关系,是我们与外部侵扰相抗衡的最后防线;而从“承载日常”的角度看,家宅还需解决我们与自己的关系,是我们向内探索、强化内心富足的精神领地。
季意设计设计总监Nemo,在新近完成的江安别墅私宅作品中,对家宅的庇护性与日常性,做了些不同于往常的探索。更有意思的是,穿梭于空间之中,还能隐隐感受到一种巴什拉式的空间诗意。


这座位于成都双流的独栋别墅,共两层,面积为340平方米。一楼大厅是7米高的挑空空间,7米高的墙面上,一正一侧各辟出五米高的大窗户,最大尺度地将室内与室外融合为一体。
当树影摇曳,阳光和着绿影斑斑点点地洒落进来,整个空间便有了不一样的自然灵韵与静谧之情。





法国哲学家加斯东·巴什拉在《空间的诗学》中讲到:“家宅的存在与我们的存在相契合,并将以整体的方式自行展开。”这指的便是人与空间的双向互动关系。因为住宅空间中最令我们着迷的,往往是空间的情绪以及人居住于此的心灵体验。
因此,空间如何依循着主人的心性、气质、偏好与日常行为而缓缓展开,是一个私宅能否向更高的精神领域升华的关键。






在如此大的空间尺度之下,如何让空间清澈、通透,则得益于设计师Nemo对空间秩序的控制。
日常生活往往琐碎、混乱、无序,但干净的空间切割的方式与清晰明了的空间动线的规划,却能够让碎片化的现代性日常得以安之若素,使空间能够从现代文明所造成的物质丰富与精神匮乏的悖离中,发掘出精神上与情感上的丰富性与纯粹性。



不难想象,空间格局的重组是这个作品得以呈现的关键,对原建筑的改动可以说是大刀阔斧。
一楼的非承重墙几乎被全部拆除,使得一楼在平面上呈现出开放的状态,呼应着7米高的纵向挑高,让空间延续而流动。二楼则是根据光、视野、需求的不同,进行功能空间的重新规划与组合,形成不同的空间形式与尺度,增强居住体验与空间呵护感。





毫无疑问,这是一套有着自我态度和自我诉求的私宅空间。
空间内敛、克制,尽量不予显露人为的痕迹,让渡并激发着空间的生命力,散发出迷人的光芒。在这里,设计师Nemo用看似最简单的方式,完成了一次润物无声的内在转化,还原了生活的日常本真与精神质性。


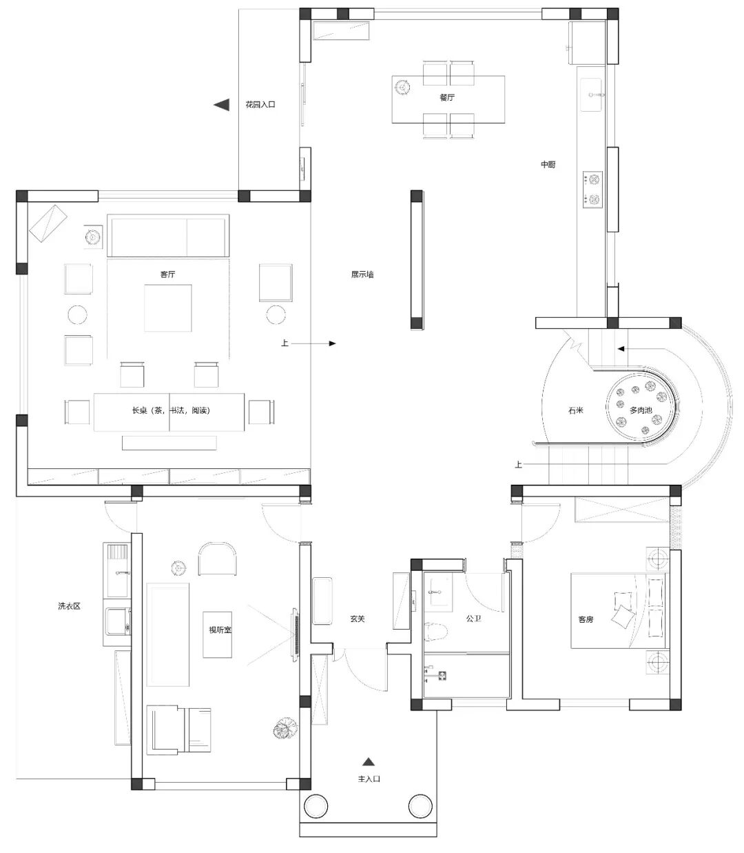
一楼平面图

二楼平面图
